WiSO Nord – C2

Ap. 2 – Parter cu grădină

Apartamentele sunt gândite să ofere echilibrul perfect între confort și funcționalitate, cu spații luminoase și atent optimizate. Fiecare locuință este proiectată în detaliu pentru a crea un cămin modern și practic, cu finisaje premium și compartimentări inteligente, care valorifică fiecare metru pătrat și îți asigură confortul dorit

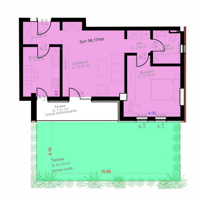
56.17 mp

Suprafață utilă

49.98 mp

Terasă exterioară

130.900

Euro + TVA

2 camere

Număr camere

WiSO Nord – C2

Ap. 2 – Parter cu grădină

Apartamentele sunt gândite să ofere echilibrul perfect între confort și funcționalitate, cu spații luminoase și atent optimizate. Fiecare locuință este proiectată în detaliu pentru a crea un cămin modern și practic, cu finisaje premium și compartimentări inteligente, care valorifică fiecare metru pătrat și îți asigură confortul dorit

Câteva cuvinte

Despre proiect

Proiectul este alcătuit din 3 blocuri care cuprind în total 124 de apartamente, 1 spațiu SAD și 146 locuri de parcare, dintre care 112 sunt amplasate în subteran.

Structura de rezistență este compusă din diafragme și grinzi din beton armat, iar închiderea exterioară este realizată din cărămidă ceramică și tâmplărie PVC. Învelitoarea este de tip terasă necirculabilă, amenajată pe o placă din beton armat și izolată cu membrană bituminoasă și termoizolație.

Compartimentările interioare între apartamente și spațiile comune sunt executate din zidărie cu grosimea de minimum 25 cm. Circulația verticală între etaje este asigurată de ascensor și scară interioară.

Care este

Stadiul execuției

Blocul C1 a fost finalizat și predat integral în 2024, toate apartamentele fiind vândute. Mai este disponibil un singur spațiu comercial (SAD), cu 64 mp utili și 25 mp terasă – ideal pentru birou sau activitate de servicii.

Blocul C3 este finalizat și predat, cu un stoc limitat de apartamente cu 2 și 3 camere încă disponibile. Restul unităților au fost deja contractate, iar interesul rămâne ridicat datorită poziției și calității finisajelor.

Blocul C2 are structura finalizată, iar lucrările avansează accelerat. Termenul estimat de finalizare este sfârșitul anului 2026, proiectul urmând să ofere același nivel ridicat de confort, eficiență și calitate care definește ansamblul WiSO.

Suprafață utilă – 56.17 mp

Terasă exterioară – 49.98 mp

Bucătărie – 9.03 mp

Living – 20.98 mp

Dormitor – 14.78 mp

Baie – 4.58 mp

Hol – 6.76 mp

Dotări ale ansablului rezidențial

  • Centrală termică proprie și încălzire în pardoseală pentru eficiență și confort sporit;
  • Casa scării și spațiile comune finisate modern, cu materiale premium și lift;
  • Uși metalice la intrare și uși mdf lăcuit la interior;
  • Tâmplărie PVC de calitate superioară, gri la exterior și alb la interior;
  • Conexiuni pregătite pentru telefonie, internet și cablu TV;
  • Contorizare individuală a utilităților (energie electrică, gaze naturale și apă);
  • Spații verzi atent amenajate pentru relaxare și recreere;
  • Acces securizat prin interfon.

56.17 mp

Suprafață utilă

130.900 Euro + TVA

Preț pornire

2 camere

Număr camere

49,98 mp

Terasă exterioară

Câteva cuvinte

Despre proiect

Proiectul este alcătuit din 3 blocuri care cuprind în total 124 de apartamente, 1 spațiu SAD și 146 locuri de parcare, dintre care 112 sunt amplasate în subteran.

Structura de rezistență este compusă din diafragme și grinzi din beton armat, iar închiderea exterioară este realizată din cărămidă ceramică și tâmplărie PVC. Învelitoarea este de tip terasă necirculabilă, amenajată pe o placă din beton armat și izolată cu membrană bituminoasă și termoizolație.

Compartimentările interioare între apartamente și spațiile comune sunt executate din zidărie cu grosimea de minimum 25 cm. Circulația verticală între etaje este asigurată de ascensor și scară interioară.

Care este

Stadiul execuției

Blocul C1 a fost finalizat și predat integral în 2024, toate apartamentele fiind vândute. Mai este disponibil un singur spațiu comercial (SAD), cu 64 mp utili și 25 mp terasă – ideal pentru birou sau activitate de servicii.

Blocul C3 este finalizat și predat, cu un stoc limitat de apartamente cu 2 și 3 camere încă disponibile. Restul unităților au fost deja contractate, iar interesul rămâne ridicat datorită poziției și calității finisajelor.

Blocul C2 are structura finalizată, iar lucrările avansează accelerat. Termenul estimat de finalizare este sfârșitul anului 2026, proiectul urmând să ofere același nivel ridicat de confort, eficiență și calitate care definește ansamblul WiSO.

Suprafață utilă – 56.17 mp

Terasă exterioară – 49.98 mp

Bucătărie – 9.03 mp

Living – 20.98 mp

Dormitor – 14.78 mp

Baie – 4.58 mp

Hol – 6.76 mp

Dotări ale ansablului rezidențial

  • Centrală termică proprie și încălzire în pardoseală pentru eficiență și confort sporit;
  • Casa scării și spațiile comune finisate modern, cu materiale premium și lift;
  • Uși metalice la intrare și uși mdf lăcuit la interior;
  • Tâmplărie PVC de calitate superioară, gri la exterior și alb la interior;
  • Conexiuni pregătite pentru telefonie, internet și cablu TV;
  • Contorizare individuală a utilităților (energie electrică, gaze naturale și apă);
  • Spații verzi atent amenajate pentru relaxare și recreere;
  • Acces securizat prin interfon.
© Copyright - Wiso Properties